Prodej bytu 3+1, 80 m², Strážnice - Ořechovka

  • Podlahová plocha: 80m2
  • Parcela: 93m2
  • Počet pokojů: 3
  • Koupelna: 1×
  • Sklep: 1×
  • Balkon: 5m2
  • Podlaží: 4 z 5
4 749 000 Kč
za nemovitost včetně provize
Ondřej Brim
603 390 202
Mám zájem

Detaily nemovitosti

Obec:
Strážnice
Typ zakazky:
Prodej
Typ nemovitosti:
Byt
Typ vlastnictví:
Osobní
Dispozice:
3+1
Výměra:
93m2
Užitná plocha:
80m2
Konstrukce:
Panelová
PENB:
C stáhnout
Podlaží:
4

Popis nemovitosti

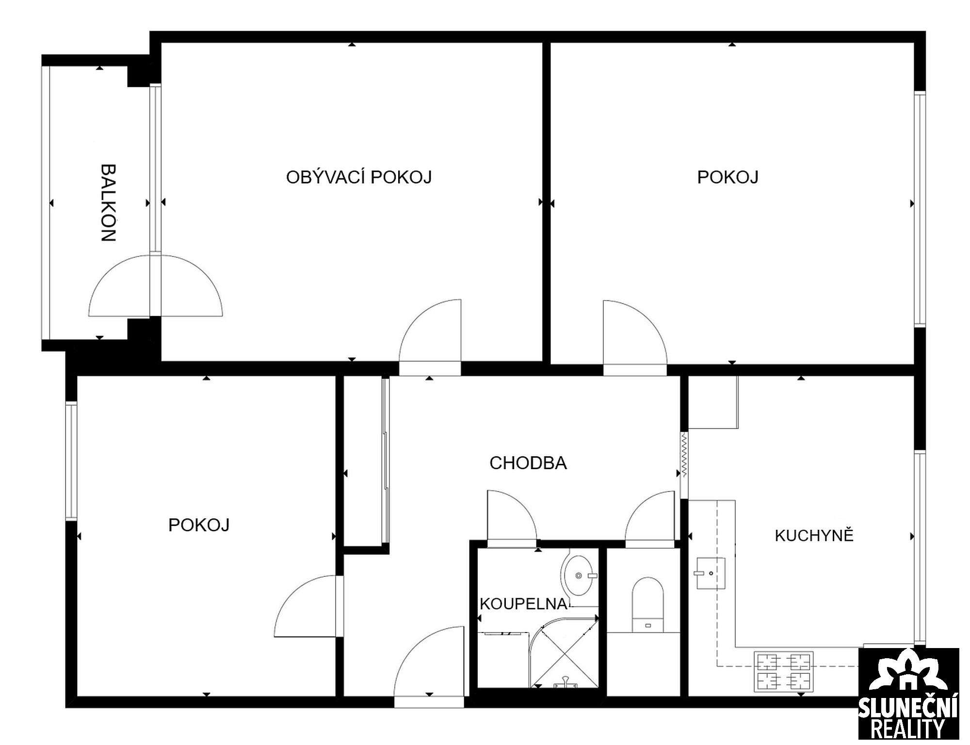
Nabízíme k prodeji světlý a velmi prakticky řešený byt o dispozici 3+1 s čistou podlahovou plochou 80 m², doplněný lodžií o velikosti 4,5 m² a prostornou sklepní kójí o výměře 9,1 m². Byt se nachází ve vyhledávané a klidné lokalitě Strážnice – Ořechovka, která patří mezi oblíbené části města díky kombinaci klidného bydlení a výborné dostupnosti všech služeb. Byt je situován ve 4. nadzemním podlaží revitalizovaného bytového domu s výtahem. Dům prošel kompletní modernizací, což se pozitivně odráží nejen na jeho technickém stavu, ale i na celkovém komfortu bydlení. Dispoziční řešení bytu nabízí dostatek prostoru pro pohodlné rodinné bydlení – samostatnou kuchyň s kuchyňskou linkou, obývací pokoj se vstupem na lodžii, ložnici, dětský pokoj, koupelnu, samostatnou toaletu a prostornou vstupní chodbu s dostatkem úložných prostor. Součástí prodeje je kuchyňská linka včetně jídelního stolu a židlí, dále vestavné skříně v chodbě a ložnici, které zajišťují praktické a efektivní využití prostoru. Byt je vhodný jak pro rodinu s dětmi, tak i pro zájemce hledající komfortní bydlení s dostatkem místa. Lokalita Ořechovka nabízí kompletní občanskou vybavenost v docházkové vzdálenosti – školy a školky, obchody, zdravotní středisko, sportoviště, dětská hřiště i zastávky veřejné dopravy. Okolí je zároveň ideální pro volnočasové aktivity, procházky či relaxaci v zeleni. Pro více informací nebo sjednání osobní prohlídky nás neváhejte kontaktovat. Prohlídky jsou možné po předchozí domluvě.

Lokalita nemovitosti

Fotogalerie

3Dprohlídka

Napište prosím Vaše kontakty, ozveme se obratem
×
© 2004–2026 Sluneční Reality Mapa stránek