Prodej rodinného domu 4+kk, Horní Němčí

  • Podlahová plocha: 148m2
  • Parcela: 822m2
  • Počet pokojů: 4
  • Koupelna: 1×
  • Podlaží: 2 z 2
  • Parkovací stání: 5×
  • Garáž: 1×
7 190 000 Kč
za nemovitost včetně provize
Ondřej Brim
603 390 202

Detaily nemovitosti

Obec:
Horní Němčí
Typ zakazky:
Prodej
Typ nemovitosti:
Dům
Dispozice:
Rodinný
Výměra:
822m2
Užitná plocha:
148m2
Konstrukce:
Cihlová
PENB:
G2
Podlaží:
2

Popis nemovitosti

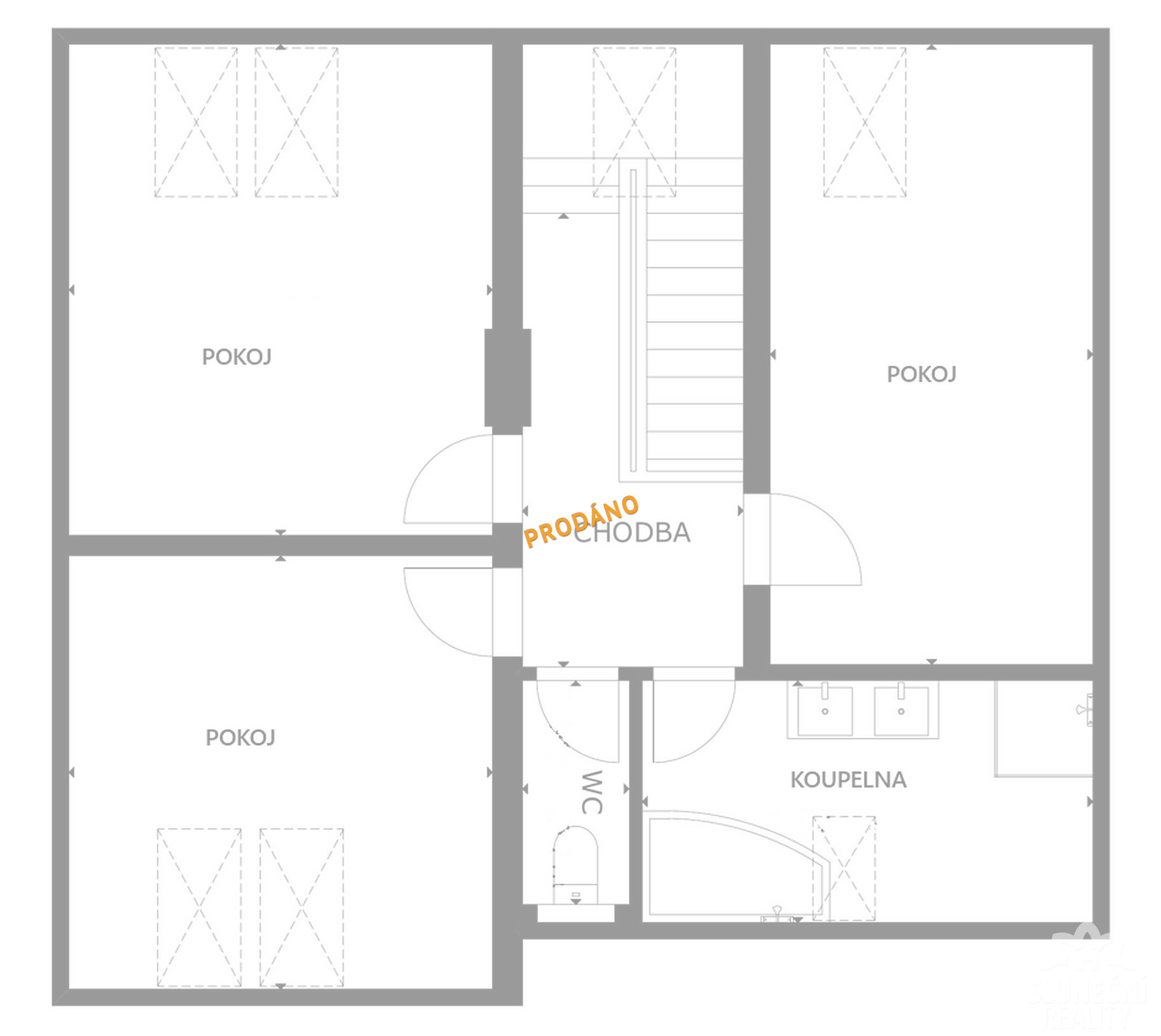
Nabízíme k prodeji rodinný dům 4+kk v obci Horní Němčí. Dům má dvě nadzemní podlaží. V přízemí (1. NP) se nachází prostorný obývací pokoj s kuchyňským koutem a vstupem na zahradu, vstupní vestibul, koupelna s toaletou a garáž. V patře (2. NP) jsou tři samostatné pokoje, další koupelna a toaleta. Součástí domu je průjezdná garáž (30 m²), kterou lze využít i jako vjezd do dvora. Na dvoře se nachází ještě jedna samostatně stojící garáž (30 m²). Vytápění a ohřev vody zajišťuje plynový kotel, alternativně je možné topit krbovými kamny. V 1.NP je mimo krbové kamna i podlahové topení. Zahrada o rozloze 606 m² je mírně svažitá a nabízí dostatek prostoru pro odpočinek i zahradničení. Dům se nachází 24 km od Uherského Hradiště, 15 km od Uherského Brodu a 16 km od hraničního přechodu se Slovenskem ve Strání. Pro více informací nás neváhejte kontaktovat telefonicky nebo e-mailem. Prohlídky jsou možné po předchozí domluvě.

Lokalita nemovitosti

Fotogalerie

3Dprohlídka

Napište prosím Vaše kontakty, ozveme se obratem
×
© 2004–2026 Sluneční Reality Mapa stránek