Prodej rodinného domu 5+1 s garáží, Uherské Hradiště - Solná cesta

  • Podlahová plocha: 278m2
  • Parcela: 512m2
  • Počet pokojů: 5
  • Koupelna: 2×
  • Terasa: 4m2
  • Podlaží: 1 z 2
  • Garáž: 1×
10 990 000 Kč
za nemovitost včetně provize
Ondřej Brim
603 390 202
Mám zájem

Detaily nemovitosti

Obec:
Uherské Hradiště
Typ zakazky:
Prodej
Typ nemovitosti:
Dům
Dispozice:
Rodinný
Výměra:
512m2
Užitná plocha:
278m2
Konstrukce:
Cihlová
PENB:
G2
Podlaží:
1

Popis nemovitosti

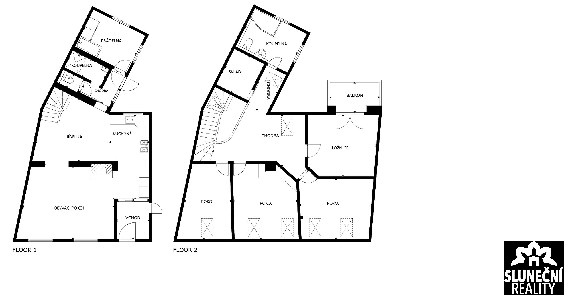
Naše společnost Vám nabízí k prodeji prostorný rodinný dům o dispozici 5+1 v atraktivní a klidné lokalitě Uherské Hradiště – Solná cesta. Tento moderní dům s podlahovou plochou 251 m² a garáží o velikosti 27 m² byl kolaudován v roce 2009. Je ideální volbou pro rodinu, která hledá komfortní bydlení s dostatkem prostoru a zároveň výbornou dostupností do centra města. Dům je rozdělen do dvou nadzemních podlaží. 1.NP nabízí vstupní chodbu, prostorný obývací pokoj, kuchyni s jídelnou, koupelnu, samostatné WC, technickou místnost, garáž a přímý vstup na zahradu. 2.NPdisponuje čtyřmi samostatnými pokoji, terasou o výměře 4 m², koupelnou s WC a další technickou místností. Nemovitost je napojena na všechny inženýrské sítě – plyn, elektřinu, obecní vodovod i kanalizaci. Vytápění a ohřev vody zajišťuje plynový kotel se zásobníkem. Alternativou je velký krb s horkovzdušným rozvodem, který přispívá k příjemné atmosféře i úspoře nákladů na vytápění. Do poloviny roku 2026 bude sousední dům odstraněn a vedle nemovitosti vzniknou dvě nová parkovací místa, která jsou již zahrnuta v prodejní ceně. Vizualizaci budoucího stavu naleznete mezi fotografiemi inzerátu. Pro více informací nás neváhejte kontaktovat telefonicky nebo e-mailem. Prohlídky jsou možné po předchozí domluvě.

Lokalita nemovitosti

Fotogalerie

3Dprohlídka

Napište prosím Vaše kontakty, ozveme se obratem
×
© 2004–2026 Sluneční Reality Mapa stránek