Prodej rodinného domu 6+1 , Uherské Hradiště - Jarošov, 528 m²

  • Podlahová plocha: 203m2
  • Parcela: 528m2
  • Počet pokojů: 5
  • Koupelna: 2×
  • Sklep: 1×
  • Podlaží: 1 z 2
  • Parkovací stání: 2×
  • Garáž: 1×
11 800 000 Kč
za nemovitost včetně provize
Veronika Sedláková
603 390 202
Mám zájem

Detaily nemovitosti

Obec:
Uherské Hradiště
Typ zakazky:
Prodej
Typ nemovitosti:
Dům
Dispozice:
Rodinný
Výměra:
528m2
Užitná plocha:
203m2
Konstrukce:
Cihlová
PENB:
C
Podlaží:
1

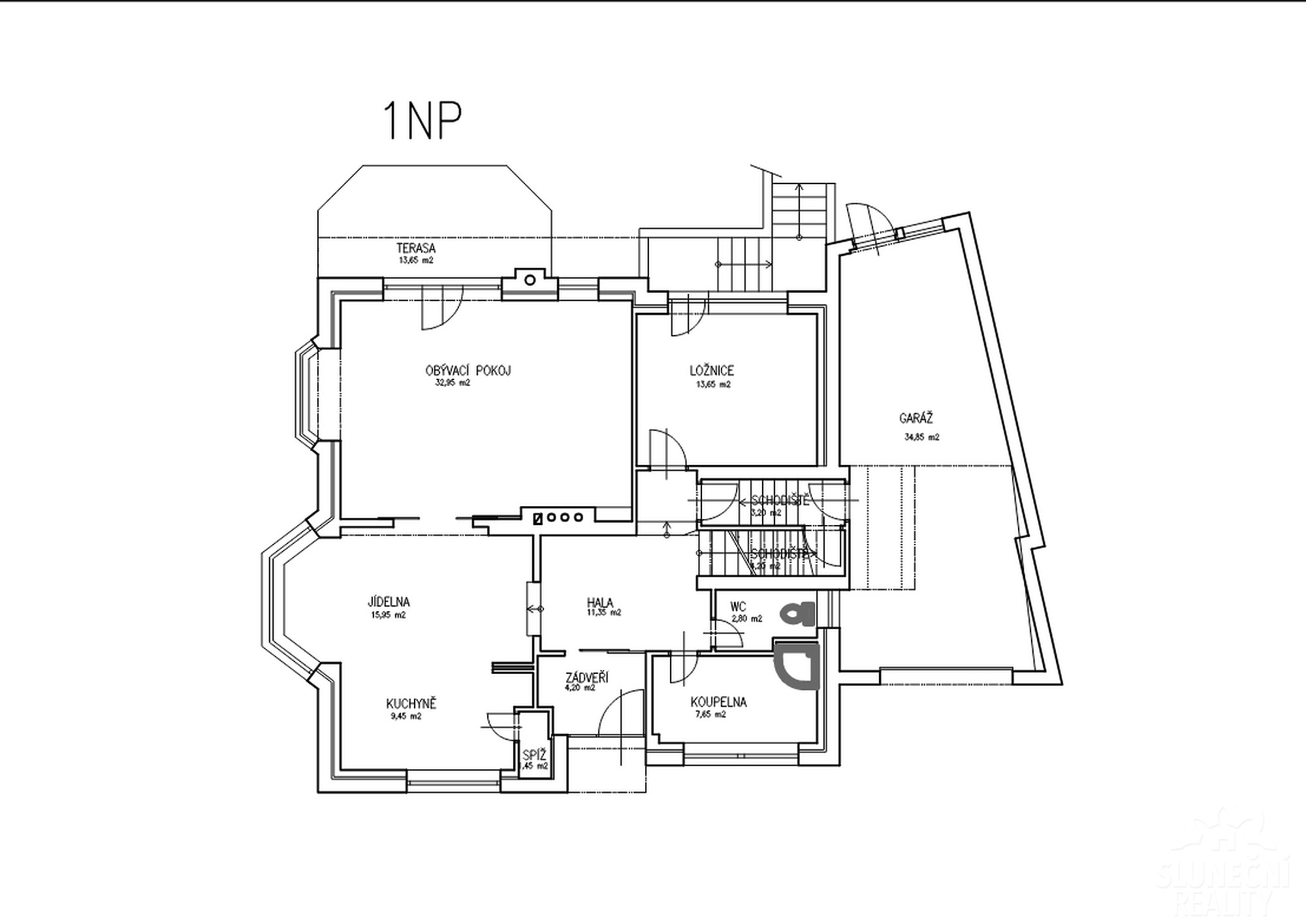
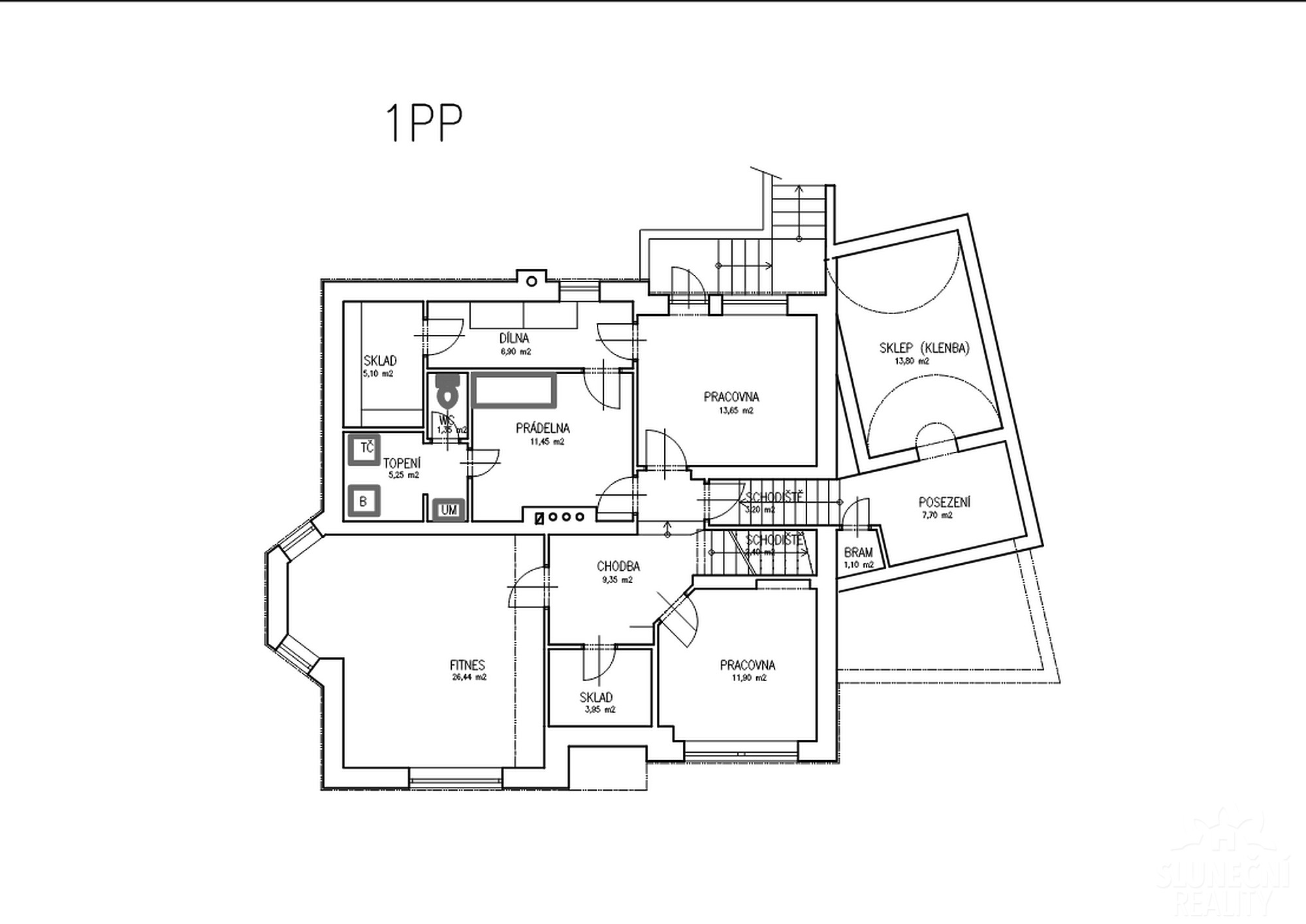
Popis nemovitosti

Nabízíme k prodeji samostatně stojící rodinný dům s celkovou plochou 528 m² v klidné části Jarošova, městské části Uherského Hradiště. Dům se nachází ve slepé ulici, což zajišťuje naprostý klid, soukromí a minimální provoz vozidel – ideální pro rodiny s dětmi i vícegenerační bydlení nebo i k podníkaní.

Dům byl zkolaudován v roce 1993 a v roce 2010 prošel celkovou rekonstrukcí.Je postaven z kvalitních materiálů a je celkově zateplen. Díky dispozičnímu řešení jej lze využít i jako dvougenerační – v každém patře je příprava pro kuchyňskou část včetně odpadů a v domě jsou instalovány odpočtové elektroměry pro oddělené měření spotřeby.

Dispozice a vybavení:

V přízemí se nachází :

V patře najdete 4+KK:

Exteriér a parkování:

K domu náleží zahrada vhodná pro odpočinek i rodinné aktivity. Parkování je možné jak v garáži, tak přímo u domu. Do garáže se vejdou dvě auta a další dvě parkovací stání jsou k dispozici venku na pozemku.

Lokalita:

Jarošov je klidná a vyhledávaná část Uherského Hradiště. V okolí se nachází škola, školka, dětské hřiště, cyklostezka i zastávka MHD. Do centra města, které nabízí kompletní občanskou vybavenost, se dostanete během několika minut.

Neváhejte a domluvte si prohlídku! Tento dům vám poskytne pohodlné, klidné bydlení s možností dvougeneračního využití a okamžitého nastěhování.

Rádi Vám pomůžeme i s vyřízením financování na míru. Prohlídky možné po předchozí domluvě.

Vizualizace

Lokalita nemovitosti

Fotogalerie

Napište prosím Vaše kontakty, ozveme se obratem
×
© 2004–2026 Sluneční Reality Mapa stránek